大井町センタービル 5階 501
物件概要
物件番号
758-00012-60物件名
大井町センタービル所在地
- 東京都品川区大井1-24-5
- アクセスマップ
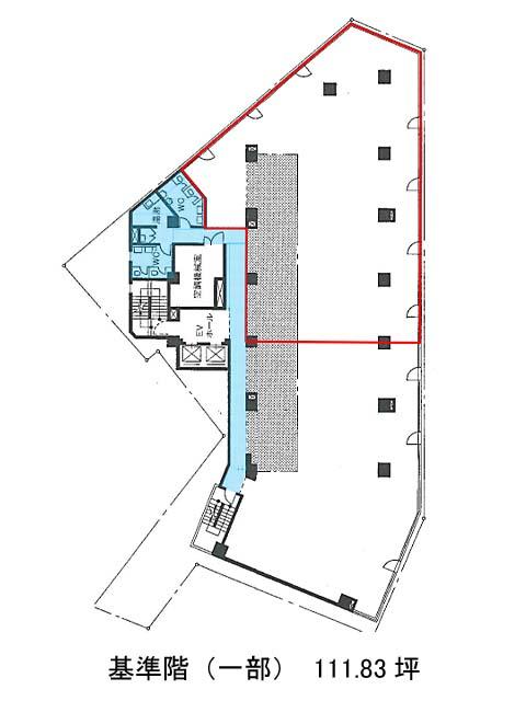
面積
111.83坪賃料(共益費含)
月額2,214,235円(19,800円/坪)
入居日
相談保証金
20,934,576円礼金
なし更新料
なし償却費
1ケ月竣工
1987年12月構造
RC規模
地上7階/地下1階トイレ
男女別空調
セントラルエレベーター
有セキュリティ
駐車場
有耐震
新耐震基準基準階天井高
空室延床面積
481.76坪情報更新日
2026/02/10大井町センタービルのテナント募集中区画
| 階数 | 面積 | 賃料(共益費含む) | 保証金 | 入居可能日 | 検討リスト | 詳細 |
|---|---|---|---|---|---|---|
| 3 | 185.32坪 | 3,669,336円/月(19,800円/坪) | 3,469万円 | 相談 | ||
| 4 | 184.61坪 | 3,655,279円/月(19,800円/坪) | 3,455万円 | 相談 | ||
| 5 | 111.83坪 | 2,214,235円/月(19,800円/坪) | 2,093万円 | 相談 |
…新着物件
大井町センタービルのアクセス
大井町センタービルの物件情報
大井町センタービル(品川区大井)は大井町駅(A2番出口)から徒歩3分の賃貸オフィスです。1987年竣工、地上7階・地下1階建ての鉄骨鉄筋コンクリート造です。駅至近で各方面にアクセス抜群の利便性の高いエリアで、周辺には飲食店、コンビニも点在しています。光学通りに面しており、落ち着いた色合いの外観がスタイリッシュな印象です。エントランスは広々としており、ガラス張りの扉で明るく、気持ちよく来訪者を迎えられるでしょう。基準階面積は約185坪。個別空調、OAフロア、光ファイバー引込済、トイレは男女別設置です。機械式駐車場も完備。貸室は特徴的な形状ですが、真ん中に柱はないので、比較的レイアウトの自由度は高いでしょう。大井町センタービルは大井町駅(A2番出口)の他に下神明駅(出口)徒歩11分、鮫洲駅(出口)徒歩15分で利用も可能です。

