オフィスT&Uビル 3階
物件概要
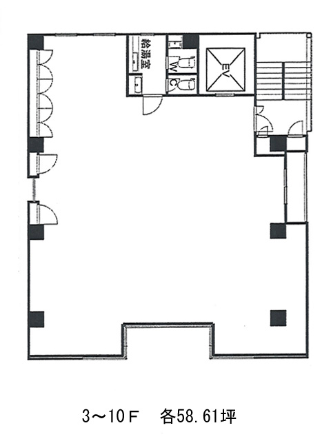
オフィスT&Uビルのテナント募集中区画
| 階数 | 面積 | 賃料(共益費含む) | 保証金 | 入居可能日 | 検討リスト | 詳細 |
|---|---|---|---|---|---|---|
| 3 | 55.74坪 | 応相談(応相談) | 応相談 | 相談 |
…新着物件
オフィスT&Uビルのアクセス
オフィスT&Uビルの物件情報
オフィスT&Uビル(品川区東五反田)は五反田駅(A6番出口)から徒歩3分の賃貸オフィスです。1989年竣工、地上10階地下1階建S造の建物です。細長くすらりした外観をしています。貸室は50坪台で、コンパクトなオフィスがそろっています。コの字型のフロアは支柱の出っ張りが少ない為レイアウトがしやすいでしょう。室内にダイレクトインのEV・男女別トイレ・給湯室・個別・OAフロアといった設備仕様をしています。車線が多く道幅の広い桜田通り沿いに建ち、室内からの見通しがよいでしょう。周辺はオフィスビル・分譲マンションが混在しています。オフィスT&Uビルは五反田駅(A6番出口)の他に高輪台駅(A2番出口)徒歩9分、大崎広小路駅(出口)徒歩10分で利用も可能です。

