SAISEI池田山ビル 4階 4B
物件概要
物件番号
761-00084-50物件名
SAISEI池田山ビル所在地
- 東京都品川区東五反田5-10-25
- アクセスマップ
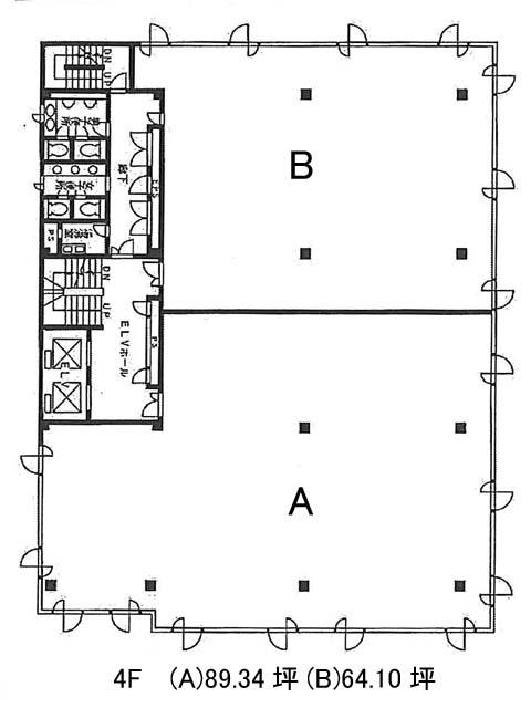
面積
64.10坪賃料(共益費含)
:応相談応相談
入居日
即保証金
応相談礼金
なし更新料
なし償却費
なし竣工
1994年10月構造
RC規模
地上5階トイレ
男女別空調
個別空調エレベーター
有セキュリティ
有駐車場
無耐震
新耐震基準基準階天井高
2500mm空室延床面積
153.44坪情報更新日
2025/11/27SAISEI池田山ビルのテナント募集中区画
| 階数 | 面積 | 賃料(共益費含む) | 保証金 | 入居可能日 | 検討リスト | 詳細 |
|---|---|---|---|---|---|---|
| 4 | 89.34坪 | 応相談(応相談) | 応相談 | 即 | ||
| 4 | 64.10坪 | 応相談(応相談) | 応相談 | 即 |
…新着物件
SAISEI池田山ビルのアクセス
SAISEI池田山ビルの物件情報
SAISEI池田山ビル(品川区東五反田)は五反田駅(A7番出口)から徒歩4分の賃貸オフィスです。1994年竣工、地上5階建RC造のビルです。明るいベージュのタイル張りに、横長のガラス窓が並びすっきりとした外観をしています。貸室は60坪~150坪台と幅広く、多様な規模のビジネスに対応できるでしょう。EV・機械警備・OAフロア・貸室外の男女別トイレといった設備仕様があり、空調は個別空調を導入しています。大通りから1本入った道沿いに建ち、周辺は中層階のオフィスやマンションが建ち並びます。駅前の賑わいと異なり、落ち着いた雰囲気のエリアです。SAISEI池田山ビルは五反田駅(A7番出口)の他に高輪台駅(A2番出口)徒歩9分、大崎広小路駅(出口)徒歩12分で利用も可能です。

