Nビル(ニウケビル) 3階
物件概要
物件番号
765-00058-30物件名
Nビル(ニウケビル)所在地
- 東京都品川区東品川2-2-33
- アクセスマップ
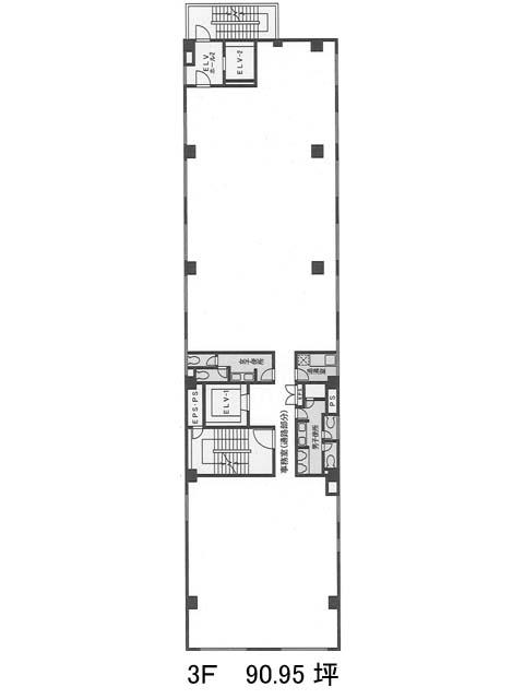
面積
90.95坪賃料(共益費含)
月額1,600,720円(17,600円/坪)
入居日
相談保証金
8,185,500円礼金
1ケ月更新料
なし償却費
なし竣工
1986年10月構造
SRC規模
地上6階トイレ
男女別空調
エレベーター
有セキュリティ
有駐車場
無耐震
新耐震基準基準階天井高
2600mm空室延床面積
90.95坪情報更新日
2026/03/12Nビル(ニウケビル)のテナント募集中区画
| 階数 | 面積 | 賃料(共益費含む) | 保証金 | 入居可能日 | 検討リスト | 詳細 |
|---|---|---|---|---|---|---|
| 3 | 90.95坪 | 1,600,720円/月(17,600円/坪) | 818万円 | 相談 |
…新着物件
Nビル(ニウケビル)のアクセス
Nビル(ニウケビル)の物件情報
Nビル(ニウケビル)(品川区東品川)は天王洲アイル駅(出口B)から徒歩4分の賃貸オフィスです。Nビル(ニウケビル)は天王洲アイル駅(出口B)の他に新馬場駅(北口)徒歩14分、北品川駅(出口)徒歩15分で利用も可能です。

