鈴中ビル大森ANNEX 7階
物件概要
鈴中ビル大森ANNEXのテナント募集中区画
| 階数 | 面積 | 賃料(共益費含む) | 保証金 | 入居可能日 | 検討リスト | 詳細 |
|---|---|---|---|---|---|---|
| 3 | 70.81坪 | 応相談(応相談) | 応相談 | 2026年1月上旬 | ||
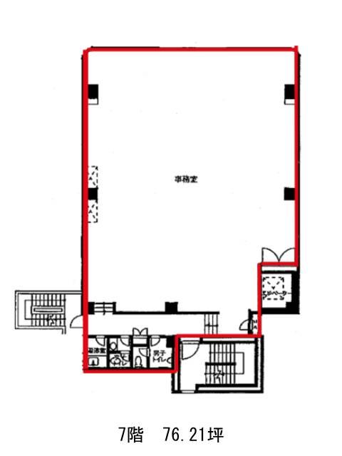
| 7 | 76.21坪 | 応相談(応相談) | 応相談 | 2026年1月上旬 | ||
| 8 | 70.10坪 | 応相談(応相談) | 応相談 | 即 |
…新着物件
アクセス
鈴中ビル大森ANNEXの物件情報
鈴中ビル大森ANNEX(品川区南大井)は大森駅(北口2)から徒歩4分の賃貸オフィスです。鈴中ビル大森ANNEXは大森駅(北口2)の他に大森海岸駅(出口)徒歩11分で利用も可能です。

