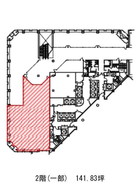
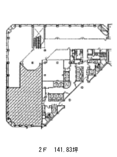
大森ベルポートB館 2階
物件概要
大森ベルポートB館のテナント募集中区画
| 階数 | 面積 | 賃料(共益費含む) | 保証金 | 入居可能日 | 検討リスト | 詳細 |
|---|---|---|---|---|---|---|
| 2 | 141.83坪 | 応相談(応相談) | 応相談 | 2027年6月 | ||
| 6 | 220.00坪 | 応相談(応相談) | 応相談 | 即 | ||
| 11 | 473.48坪 | 応相談(応相談) | 応相談 | 即 | ||
| 12 | 473.48坪 | 応相談(応相談) | 応相談 | 即 |
…新着物件
アクセス
大森ベルポートB館の物件情報
大森ベルポートB館(品川区南大井)は大森駅(東口)から徒歩5分の賃貸オフィスです。1991年竣工、地上18階地下3階建S造のビルです。新耐震基準を満たしています。ミラーガラスに細長くアクセントの壁が並び、すっきりとした外観をしています。フロアは三角形ですが、共用部を一箇所に集めており貸室は長方形になっております。無柱空間で配置がしやすいでしょう。EV・セントラル空調・OAフロア・貸室外の男女別トイレといった設備仕様をしています。1階は物販店舗・クリニックとなります。貸室面積は60坪台・200坪台・400坪台など幅広くございます。大森ベルポートB館は大森駅(東口)の他に大森海岸駅(出口)徒歩6分で利用も可能です。

