2階は現在募集がありません
2フロア募集区画あり

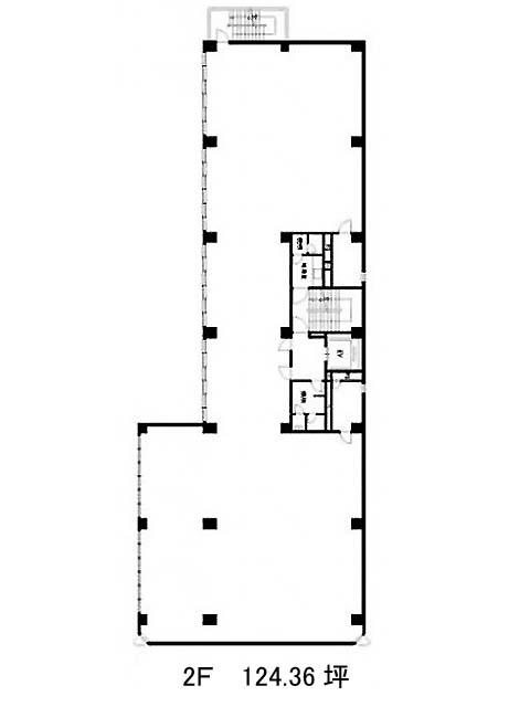
飯田橋尚学ビル別館 2階

前の写真 次の写真

物件概要

物件番号

775-00059-20

物件名

飯田橋尚学ビル別館

所在地

面積

124.36坪

賃料(共益費含)


入居日

募集終了

保証金

礼金

更新料

償却費

竣工

1974年12月

構造

RC

規模

地上5階/地下1階

トイレ

男女別

空調

個別空調

エレベーター

セキュリティ

駐車場

耐震

耐震補強済み

基準階天井高

2500mm

空室延床面積

229.67坪

最寄駅

情報更新日

2025/11/06

飯田橋尚学ビル別館のテナント募集中区画

階数 面積 賃料(共益費含む) 保証金 入居可能日 検討リスト 詳細
3 124.36坪 1,504,756円/月(12,100円/坪) 1,253万円
5 105.31坪 1,274,251円/月(12,100円/坪) 884万円 2026年2月上旬
…新着物件

アクセス

飯田橋尚学ビル別館の物件情報

飯田橋尚学ビル別館(文京区後楽)は飯田橋駅(C3番出口)から徒歩7分の賃貸オフィスです。
1974年竣工、地上5階地下1階建てRC造のビルです。白い外壁ですっきりとした外観をしています。耐震補強う工事が実施されています。フロアはL字型で、共用部が一箇所に集中しており動線が良いでしょう。100坪を超える貸室は大型のオフィスをお探しの方におすすめです。EV・駐車場・OAフロア・個別空調・貸室外の男女別トイレといった設備仕様がそろいます。セキュリティとして機械警備が導入されています。内装・外装共に管理状態の良い物件です。
飯田橋尚学ビル別館は飯田橋駅(C3番出口)の他に後楽園駅(1番出口)徒歩10分、牛込神楽坂駅(A3番出口)徒歩12分で利用も可能です。

近隣のエリア・駅から探す