飯田橋尚学ビル別館 3階
物件概要
物件番号
775-00059-30物件名
飯田橋尚学ビル別館所在地
- 東京都文京区後楽2-16-1
- アクセスマップ
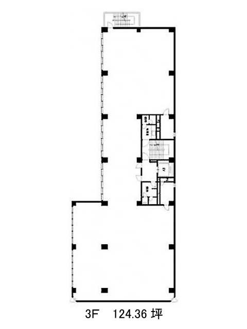
面積
124.36坪賃料(共益費含)
月額1,504,756円(12,100円/坪)
入居日
即保証金
12,535,488円礼金
なし更新料
なし償却費
なし竣工
1974年12月構造
RC規模
地上5階/地下1階トイレ
男女別空調
個別空調エレベーター
有セキュリティ
有駐車場
有耐震
耐震補強済み基準階天井高
2500mm空室延床面積
229.67坪情報更新日
2025/11/06飯田橋尚学ビル別館のテナント募集中区画
| 階数 | 面積 | 賃料(共益費含む) | 保証金 | 入居可能日 | 検討リスト | 詳細 |
|---|---|---|---|---|---|---|
| 3 | 124.36坪 | 1,504,756円/月(12,100円/坪) | 1,253万円 | 即 | ||
| 5 | 105.31坪 | 1,274,251円/月(12,100円/坪) | 884万円 | 即 |
…新着物件
飯田橋尚学ビル別館のアクセス
飯田橋尚学ビル別館の物件情報
飯田橋尚学ビル別館(文京区後楽)は飯田橋駅(C3番出口)から徒歩7分の賃貸オフィスです。1974年竣工、地上5階地下1階建てRC造のビルです。白い外壁ですっきりとした外観をしています。耐震補強う工事が実施されています。フロアはL字型で、共用部が一箇所に集中しており動線が良いでしょう。100坪を超える貸室は大型のオフィスをお探しの方におすすめです。EV・駐車場・OAフロア・個別空調・貸室外の男女別トイレといった設備仕様がそろいます。セキュリティとして機械警備が導入されています。内装・外装共に管理状態の良い物件です。飯田橋尚学ビル別館は飯田橋駅(C3番出口)の他に後楽園駅(1番出口)徒歩10分、牛込神楽坂駅(A3番出口)徒歩12分で利用も可能です。

