5階は現在募集がありません
3フロア募集区画あり

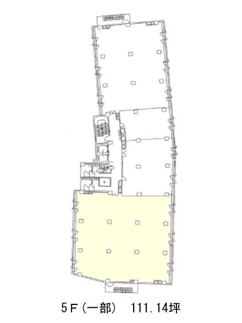
林友ビル 5階

前の写真 次の写真

物件概要

物件番号

775-00061-161

物件名

林友ビル

所在地

面積

111.14坪

賃料(共益費含)


入居日

募集終了

保証金

礼金

更新料

償却費

竣工

1974年10月

構造

RC

規模

地上6階/地下1階

トイレ

男女別

空調

セントラル

エレベーター

セキュリティ

駐車場

耐震

旧耐震基準

基準階天井高

2600mm

空室延床面積

257.52坪

最寄駅

情報更新日

2026/02/27

林友ビルのテナント募集中区画

階数 面積 賃料(共益費含む) 保証金 入居可能日 検討リスト 詳細
3 51.30坪 971,892円/月(18,945円/坪) 814万円
4 91.40坪 1,731,600円/月(18,945円/坪) 1,450万円
5 114.82坪 2,175,298円/月(18,945円/坪) 1,821万円
…新着物件

林友ビルのアクセス

林友ビルの物件情報

林友ビル(文京区後楽)は後楽園駅(1番出口)から徒歩6分の賃貸オフィスです。
1974年竣工と少し古いですが、2006年にはリニューアル工事が実施され、メンテナンスが行き届いた地上6階、地下1階建てのオフィスビルです。牛込小石川線の大通りに面しており、白の壁面タイルの外観とあわせて視認性の高い建物となっております。緑のカーペットがアクセントの清潔感のあるエントランス内には、エレベーターは2基設置。基準階面積は約250坪と大変広く、天井高も2600mmとゆとりのあるつくりとなっております。貸室内はセントラル空調、OAフロア、男女別トイレが完備されています。また機械式の立体駐車場を併設しているため、車の利用もしやすいでしょう。
林友ビルは後楽園駅(1番出口)の他に飯田橋駅(C3番出口)徒歩6分、春日駅(6番出口)徒歩8分で利用も可能です。

近隣のエリア・駅から探す