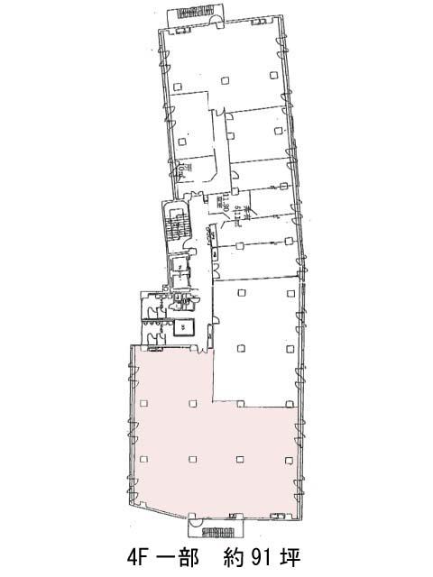
林友ビル 4階
物件概要
物件番号
775-00061-80物件名
林友ビル所在地
- 東京都文京区後楽1-7-12
- アクセスマップ
面積
91.40坪賃料(共益費含)
月額1,731,600円(18,945円/坪)
入居日
即保証金
14,502,986円礼金
なし更新料
なし償却費
なし竣工
1974年10月構造
RC規模
地上6階/地下1階トイレ
男女別空調
セントラルエレベーター
有セキュリティ
駐車場
有耐震
旧耐震基準基準階天井高
2600mm空室延床面積
257.52坪情報更新日
2026/02/27林友ビルのテナント募集中区画
| 階数 | 面積 | 賃料(共益費含む) | 保証金 | 入居可能日 | 検討リスト | 詳細 |
|---|---|---|---|---|---|---|
| 3 | 51.30坪 | 971,892円/月(18,945円/坪) | 814万円 | 即 | ||
| 4 | 91.40坪 | 1,731,600円/月(18,945円/坪) | 1,450万円 | 即 | ||
| 5 | 114.82坪 | 2,175,298円/月(18,945円/坪) | 1,821万円 | 即 |
…新着物件
林友ビルのアクセス
林友ビルの物件情報
林友ビル(文京区後楽)は後楽園駅(1番出口)から徒歩6分の賃貸オフィスです。1974年竣工と少し古いですが、2006年にはリニューアル工事が実施され、メンテナンスが行き届いた地上6階、地下1階建てのオフィスビルです。牛込小石川線の大通りに面しており、白の壁面タイルの外観とあわせて視認性の高い建物となっております。緑のカーペットがアクセントの清潔感のあるエントランス内には、エレベーターは2基設置。基準階面積は約250坪と大変広く、天井高も2600mmとゆとりのあるつくりとなっております。貸室内はセントラル空調、OAフロア、男女別トイレが完備されています。また機械式の立体駐車場を併設しているため、車の利用もしやすいでしょう。林友ビルは後楽園駅(1番出口)の他に飯田橋駅(C3番出口)徒歩6分、春日駅(6番出口)徒歩8分で利用も可能です。

