三共小石川THビルのテナント募集中区画
| 階数 | 面積 | 賃料(共益費含む) | 保証金 | 入居可能日 | 検討リスト | 詳細 |
|---|---|---|---|---|---|---|
| 地下1 | 53.40坪 | 応相談(応相談) | 応相談 | 即 | ||
| 6 | 59.49坪 | 応相談(応相談) | 応相談 | 即 |
…新着物件
アクセス
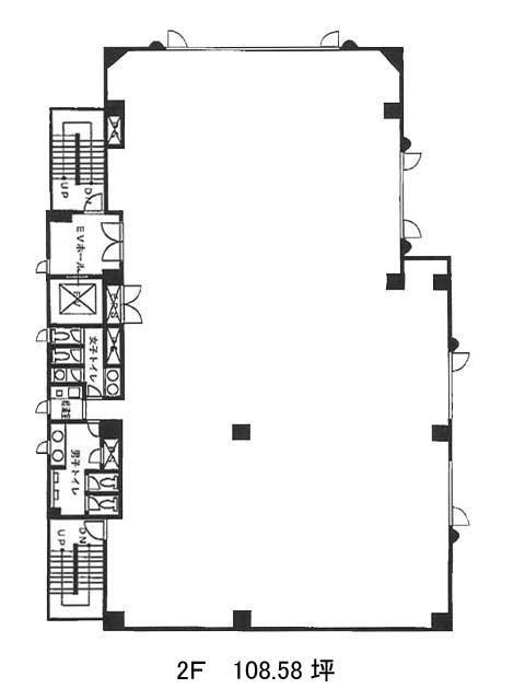
三共小石川THビルの物件情報
三共小石川THビル(文京区小石川)は茗荷谷駅(3番出口)から徒歩8分の賃貸オフィスです。
1994年竣工。淡いグレーを基調としたタイルブロックの清潔感のある外観です。大理石をふんだんに使用したホテルライクな高級感のあるエントランス内にエレベーターは1基設置されております。基準階フロアは約100坪。間取りはL字型ですが、ほぼ柱は隅に寄っており、床はフリーアクセスのためレイアウトはしやすいでしょう。その他、個別空調、男女別トイレ設置。機械式警備を導入しており、ビルは24時間利用可能となっております。また機械式の立体駐車場も併設されており、車の利用もしやすい環境となっております。

