6階は現在募集がありません
1フロア募集区画あり

利根川第2ビル 6階

前の写真 次の写真

物件概要

物件番号

786-00202-70

物件名

利根川第2ビル

所在地

面積

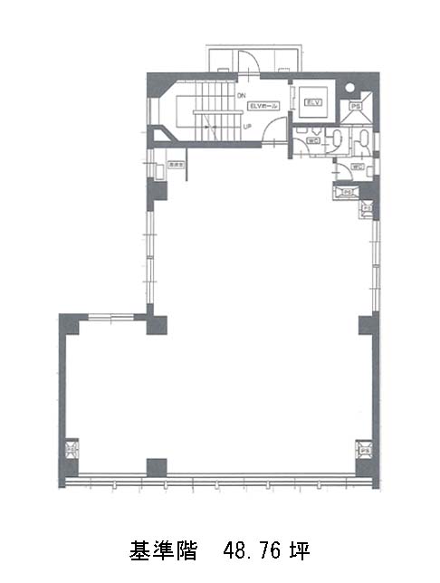
48.76坪

賃料(共益費含)


入居日

募集終了

保証金

礼金

更新料

償却費

竣工

1973年2月

構造

SRC

規模

地上8階/地下1階

トイレ

男女別

空調

個別空調

エレベーター

セキュリティ

駐車場

耐震

旧耐震基準

基準階天井高

2400mm

空室延床面積

48.76坪

最寄駅

情報更新日

2026/02/18

利根川第2ビルのテナント募集中区画

階数 面積 賃料(共益費含む) 保証金 入居可能日 検討リスト 詳細
7 48.76坪 643,632円/月(13,200円/坪) 292万円 2026年4月上旬
…新着物件

利根川第2ビルのアクセス

利根川第2ビルの物件情報

利根川第2ビル(文京区湯島)は御茶ノ水駅(1番出口)から徒歩7分の賃貸オフィスです。
利根川第2ビルは御茶ノ水駅(1番出口)の他に新御茶ノ水駅(B1番出口)徒歩8分、末広町駅(3番出口)徒歩9分で利用も可能です。

近隣のエリア・駅から探す