利根川第2ビル 7階
物件概要
物件番号
786-00202-80物件名
利根川第2ビル所在地
- 東京都文京区湯島1-6-1
- アクセスマップ
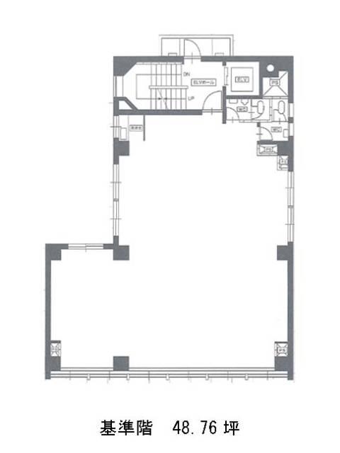
面積
48.76坪賃料(共益費含)
月額643,632円(13,200円/坪)
入居日
2026年4月上旬保証金
2,925,600円礼金
なし更新料
新1ケ月償却費
20%竣工
1973年2月構造
SRC規模
地上8階/地下1階トイレ
男女別空調
個別空調エレベーター
有セキュリティ
駐車場
無耐震
旧耐震基準基準階天井高
2400mm空室延床面積
48.76坪情報更新日
2026/02/18利根川第2ビルのテナント募集中区画
| 階数 | 面積 | 賃料(共益費含む) | 保証金 | 入居可能日 | 検討リスト | 詳細 |
|---|---|---|---|---|---|---|
| 7 | 48.76坪 | 643,632円/月(13,200円/坪) | 292万円 | 2026年4月上旬 |
…新着物件
利根川第2ビルのアクセス
利根川第2ビルの物件情報
利根川第2ビル(文京区湯島)は御茶ノ水駅(1番出口)から徒歩7分の賃貸オフィスです。利根川第2ビルは御茶ノ水駅(1番出口)の他に新御茶ノ水駅(B1番出口)徒歩8分、末広町駅(3番出口)徒歩9分で利用も可能です。

