サン・クロレラビル 1-6F
物件概要
物件番号
786-00351-1物件名
サン・クロレラビル所在地
- 東京都文京区湯島2-16-13
- アクセスマップ
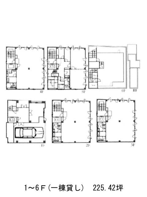
面積
225.42坪賃料(共益費含)
月額2,727,582円(12,100円/坪)
入居日
2025年12月上旬保証金
19,836,960円礼金
なし更新料
なし償却費
1ケ月竣工
1979年11月構造
RC規模
地上6階トイレ
男女別空調
個別空調エレベーター
有セキュリティ
駐車場
有耐震
旧耐震基準基準階天井高
空室延床面積
225.42坪情報更新日
2025/11/04サン・クロレラビルのテナント募集中区画
| 階数 | 面積 | 賃料(共益費含む) | 保証金 | 入居可能日 | 検討リスト | 詳細 |
|---|---|---|---|---|---|---|
| 1-6F | 225.42坪 | 2,727,582円/月(12,100円/坪) | 1,983万円 | 2025年12月上旬 |
…新着物件
アクセス
サン・クロレラビルの物件情報
サン・クロレラビル(文京区湯島)は湯島駅(5番出口)から徒歩6分の賃貸オフィスです。サン・クロレラビルは湯島駅(5番出口)の他に本郷三丁目駅(5番出口)徒歩8分、末広町駅(4番出口)徒歩8分で利用も可能です。

