宝生ビル 2階
物件概要
物件番号
788-00252-10物件名
宝生ビル所在地
- 東京都文京区本郷1-5-7
- アクセスマップ
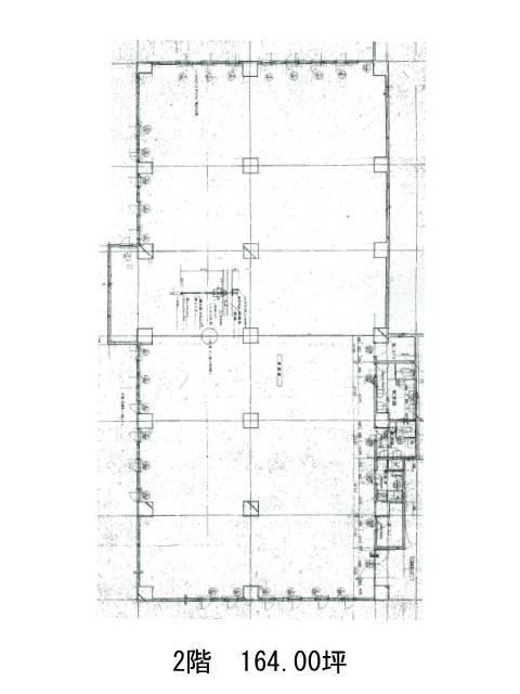
面積
164.00坪賃料(共益費含)
:応相談応相談
入居日
2026年5月上旬保証金
応相談礼金
なし更新料
なし償却費
なし竣工
1979年6月構造
SRC規模
地上8階/地下1階トイレ
男女別空調
個別空調エレベーター
有セキュリティ
有駐車場
有耐震
旧耐震基準基準階天井高
2580mm空室延床面積
164.00坪情報更新日
2026/04/02宝生ビルのテナント募集中区画
| 階数 | 面積 | 賃料(共益費含む) | 保証金 | 入居可能日 | 検討リスト | 詳細 |
|---|---|---|---|---|---|---|
| 2 | 164.00坪 | 応相談(応相談) | 応相談 | 2026年5月上旬 |
…新着物件
宝生ビルのアクセス
宝生ビルの物件情報
宝生ビル(文京区本郷)は水道橋駅(A1番出口)から徒歩2分の賃貸オフィスです。宝生ビルは水道橋駅(A1番出口)の他に後楽園駅(2番出口)徒歩9分、春日駅(A1番出口)徒歩9分で利用も可能です。

