いちご本郷ビル 6階
物件概要
物件番号
788-00301-60物件名
いちご本郷ビル所在地
- 東京都文京区本郷5-33-10
- アクセスマップ
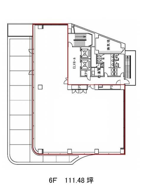
面積
111.48坪賃料(共益費含)
:応相談応相談
入居日
2026年6月下旬保証金
応相談礼金
なし更新料
なし償却費
なし竣工
1992年4月構造
SRC規模
地上6階/地下1階トイレ
男女別空調
個別空調エレベーター
有セキュリティ
有駐車場
有耐震
新耐震基準基準階天井高
2500mm空室延床面積
160.35坪情報更新日
2026/03/02いちご本郷ビルのテナント募集中区画
| 階数 | 面積 | 賃料(共益費含む) | 保証金 | 入居可能日 | 検討リスト | 詳細 |
|---|---|---|---|---|---|---|
| 5 | 48.87坪 | 応相談(応相談) | 応相談 | 即 | ||
| 6 | 111.48坪 | 応相談(応相談) | 応相談 | 2026年6月下旬 |
…新着物件
いちご本郷ビルのアクセス
いちご本郷ビルの物件情報
いちご本郷ビル(文京区本郷)は春日駅(A6番出口)から徒歩4分の賃貸オフィスです。菊坂下交差点のすぐそばに位置し、黒色の御影石調、丸みのあるデザインが特徴的なビルです。1992年竣工の地上6階、地下1階建て、新耐震基準を満たしているため安心です。エレベーターが2基、機械警備、個別空調、男女別トイレです。駐車場もありますので、社用車を利用される場合は便利でしょう。トイレは室外にあり、貸室内は比較的、自由なレイアウトを組むことが可能です。周辺にはコンビニや飲食店が複数あるため、お昼に困らないでしょう。いちご本郷ビルは春日駅(A6番出口)の他に後楽園駅(8番出口)徒歩8分、東大前駅(1番出口)徒歩10分で利用も可能です。

