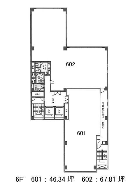
パシフィックスクエア千石のテナント募集中区画
| 階数 | 面積 | 賃料(共益費含む) | 保証金 | 入居可能日 | 検討リスト | 詳細 |
|---|---|---|---|---|---|---|
| 8 | 50.37坪 | 応相談(応相談) | 応相談 | 即 |
…新着物件
アクセス
パシフィックスクエア千石の物件情報
パシフィックスクエア千石(文京区本駒込)は千石駅(A4番出口)から徒歩2分の賃貸オフィスです。パシフィックスクエア千石は千石駅(A4番出口)の他に巣鴨駅(南口)徒歩10分、駒込駅(1番出口)徒歩13分で利用も可能です。

