TSビル 2階
物件概要
物件番号
789-00002-10物件名
TSビル所在地
- 東京都文京区本駒込1-6-17
- アクセスマップ
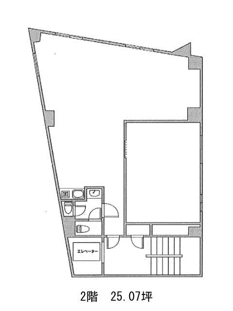
面積
25.07坪賃料(共益費含)
月額297,000円(11,847円/坪)
入居日
即保証金
810,012円礼金
1ケ月更新料
新1ケ月償却費
なし竣工
1995年2月構造
SRC規模
地上6階トイレ
男女別空調
個別空調エレベーター
有セキュリティ
駐車場
無耐震
新耐震基準基準階天井高
空室延床面積
45.29坪情報更新日
2025/11/28TSビルのテナント募集中区画
| 階数 | 面積 | 賃料(共益費含む) | 保証金 | 入居可能日 | 検討リスト | 詳細 |
|---|---|---|---|---|---|---|
| 2 | 25.07坪 | 297,000円/月(11,847円/坪) | 81万円 | 即 | ||
| 4 | 20.22坪 | 231,000円/月(11,424円/坪) | 63万円 | 即 |
…新着物件
TSビルのアクセス
TSビルの物件情報
TSビル(文京区本駒込)は本駒込駅(出口)から徒歩1分の賃貸オフィスです。TSビルは本駒込駅(出口)の他に白山駅(A3番出口)徒歩5分、東大前駅(2番出口)徒歩11分で利用も可能です。

