FORECAST亀戸のテナント募集中区画
| 階数 | 面積 | 賃料(共益費含む) | 保証金 | 入居可能日 | 検討リスト | 詳細 |
|---|---|---|---|---|---|---|
| 3 | 122.41坪 | 応相談(応相談) | 応相談 | 2026年6月上旬 |
…新着物件
アクセス
FORECAST亀戸の物件情報
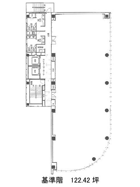
FORECAST亀戸(江東区亀戸)は亀戸駅(北口)から徒歩4分の賃貸オフィスです。明治通りの角地に位置し、洗練されたスタイリッシュな弧を描くガラス張りが強いインパクトを外観に与え、ビルの視認性を格段に高めています。駅前も徒歩圏内であり、コンビニ、銀行、複数の飲食店が点在する充実の周辺環境です。2010年竣工、地上8階・地下1階の鉄骨造で、エレベーターホールは間接照明の柔らかい光に包まれ、来客に好印象を与えるでしょう。基準階は約122坪で、OAフロア、個別空調、男女別トイレ、エレベーターは2基あり、機械警備導入で安全で快適な環境の中お仕事可能です。貸室内は無柱空間でレイアウトの自由度は高いです。FORECAST亀戸は亀戸駅(北口)の他に亀戸水神駅(出口)徒歩13分、錦糸町駅(4番出口)徒歩14分で利用も可能です。

