8階は現在募集がありません
1フロア募集区画あり

JWRD錦糸町タワー 8階

前の写真 次の写真

物件概要

物件番号

79-00009-257

物件名

JWRD錦糸町タワー

所在地

面積

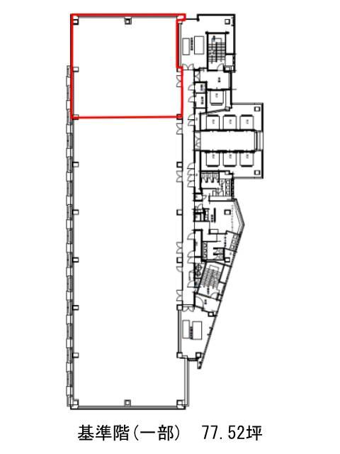
77.52坪

賃料(共益費含)


入居日

募集終了

保証金

礼金

更新料

償却費

竣工

1994年8月

構造

SRC

規模

地上17階/地下1階

トイレ

男女別

空調

セントラル

エレベーター

セキュリティ

駐車場

耐震

新耐震基準

基準階天井高

2600(1F3600)mm

空室延床面積

150.92坪

最寄駅

情報更新日

2026/02/04

JWRD錦糸町タワーのテナント募集中区画

階数 面積 賃料(共益費含む) 保証金 入居可能日 検討リスト 詳細
14 150.92坪 応相談(応相談) 応相談 2026年4月上旬
…新着物件

JWRD錦糸町タワーのアクセス

JWRD錦糸町タワーの物件情報

JWRD錦糸町タワー(江東区亀戸)は錦糸町駅(出口1)から徒歩9分の賃貸オフィスです。
京葉道路から少し入った場所に位置する地上17階・地下1階建ての視認性抜群の大型ビルです。グレーのタイル張りの外観は清潔感があり、大理石調の壁と床で天井の高いエントランスはラグジュアリーで来客時の印象も良いでしょう。1994年竣工ですが、2014年にリニューアル済みで、ビル内は清潔感に溢れています。ビル1階にコンビニがあるため、昼食などで困ることはありません。OAフロア、セントラル空調、男女別トイレ、エレベーター7基と充実の設備で、有人・機械警備併用のためセキュリティは万全です。基準階は約374坪で、貸室内は無柱空間で思いのままにレイアウトが可能です。
JWRD錦糸町タワーは錦糸町駅(出口1)の他に亀戸駅(北口)徒歩10分、住吉駅(A3番出口)徒歩14分で利用も可能です。

近隣のエリア・駅から探す