カブト上池袋ビル 7階
物件概要
物件番号
796-00002-70物件名
カブト上池袋ビル所在地
- 東京都豊島区上池袋4-1-1
- アクセスマップ
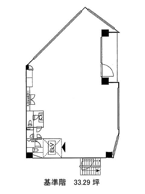
面積
33.29坪賃料(共益費含)
月額418,027円(12,557円/坪)
入居日
2026年8月上旬保証金
2,040,144円礼金
1ケ月更新料
新1ケ月償却費
1ケ月竣工
1993年7月構造
SRC規模
地上12階/地下2階トイレ
男女別空調
個別空調エレベーター
有セキュリティ
駐車場
無耐震
新耐震基準基準階天井高
空室延床面積
66.58坪情報更新日
2026/04/01カブト上池袋ビルのテナント募集中区画
| 階数 | 面積 | 賃料(共益費含む) | 保証金 | 入居可能日 | 検討リスト | 詳細 |
|---|---|---|---|---|---|---|
| 6 | 33.29坪 | 407,016円/月(12,226円/坪) | 198万円 | 2026年10月中旬 | ||
| 7 | 33.29坪 | 418,027円/月(12,557円/坪) | 204万円 | 2026年8月上旬 |
…新着物件
カブト上池袋ビルのアクセス
カブト上池袋ビルの物件情報
カブト上池袋ビル(豊島区上池袋)は北池袋駅(出口)から徒歩8分の賃貸オフィスです。明治通り沿いの角地にある、地上12階・地下2階建てのビルです。上池袋交差点に面しているので、目につきやすい立地です。茶色のパネルとスモークのかかった黒い窓を組み合わせた、落ち着いた雰囲気の外観です。基準階は33.29坪の五角形の間取りです。変わった間取りですが、エレベーターと水回りがまとまっているので、使いにくさは感じないと思います。給湯室と男女別トイレが室内に設置されています。現在、1階にレンタカー会社、2階にクリニック、3階にトランクルームが入っています。池袋から東上線で一駅、もしくは巣鴨新田駅からも9分と徒歩圏内なので、大塚駅から都電荒川線で一駅という立地です。池袋エリアでお家賃抑え目の物件をお探しの方に、お勧めのエリアです。カブト上池袋ビルは北池袋駅(出口)の他に巣鴨新田駅(停留所)徒歩9分、西巣鴨駅(A3番出口)徒歩11分で利用も可能です。

