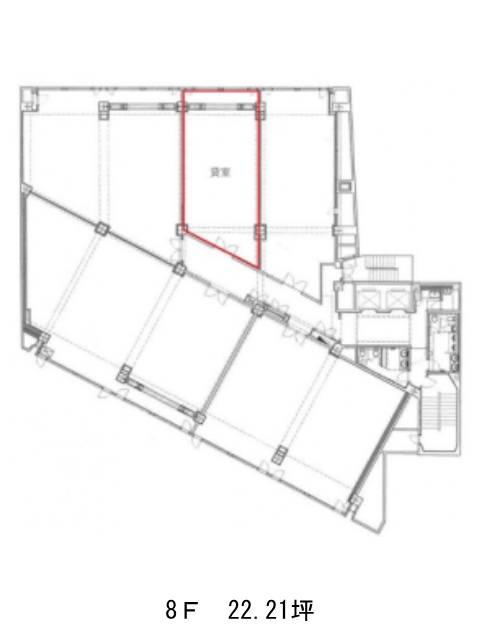
8階は現在募集がありません
藤久ビル西1号館 8階
物件概要
藤久ビル西1号館のテナント募集中区画
現在、空室がございません。
アクセス
藤久ビル西1号館の物件情報
藤久ビル西1号館(豊島区西池袋)は池袋駅(11番出口)から徒歩2分の賃貸オフィスです。1965年竣工、地上9階地下2階建SRC造のビルです。横長の窓ガラスがずらりと並び、サイドは赤茶色の外壁で目印となるでしょう。耐震補強工事が済んでいます。貸室は20坪台のものから160坪台のものもあり、様々な規模の会社に対応できるでしょう。EV2基・非常階段2箇所・駐車場・貸室外の男女別トイレ・タイルカーペットといった設備仕様が揃い、空調は個別空調となります。1~3階は事務所の他ショールームとしての利用が可能です。藤久ビル西1号館は池袋駅(11番出口)の他に要町駅(5番出口)徒歩12分、東池袋駅(1番出口)徒歩14分で利用も可能です。

