8階は現在募集がありません

藤久ビル西1号館 8階

前の写真 次の写真

物件概要

物件番号

798-00093-165

物件名

藤久ビル西1号館

所在地

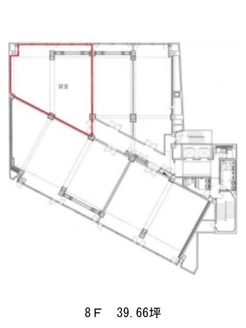
面積

39.66坪

賃料(共益費含)


入居日

募集終了

保証金

礼金

更新料

償却費

竣工

1965年1月

構造

SRC

規模

地上9階/地下2階

トイレ

男女別

空調

個別空調

エレベーター

セキュリティ

駐車場

耐震

耐震補強済み

基準階天井高

2500mm

空室延床面積

最寄駅

情報更新日

2025/07/23

藤久ビル西1号館のテナント募集中区画

現在、空室がございません。

藤久ビル西1号館のアクセス

藤久ビル西1号館の物件情報

藤久ビル西1号館(豊島区西池袋)は池袋駅(11番出口)から徒歩2分の賃貸オフィスです。
1965年竣工、地上9階地下2階建SRC造のビルです。横長の窓ガラスがずらりと並び、サイドは赤茶色の外壁で目印となるでしょう。耐震補強工事が済んでいます。貸室は20坪台のものから160坪台のものもあり、様々な規模の会社に対応できるでしょう。EV2基・非常階段2箇所・駐車場・貸室外の男女別トイレ・タイルカーペットといった設備仕様が揃い、空調は個別空調となります。1~3階は事務所の他ショールームとしての利用が可能です。
藤久ビル西1号館は池袋駅(11番出口)の他に要町駅(5番出口)徒歩12分、東池袋駅(1番出口)徒歩14分で利用も可能です。

近隣のエリア・駅から探す