1階は現在募集がありません
2フロア募集区画あり

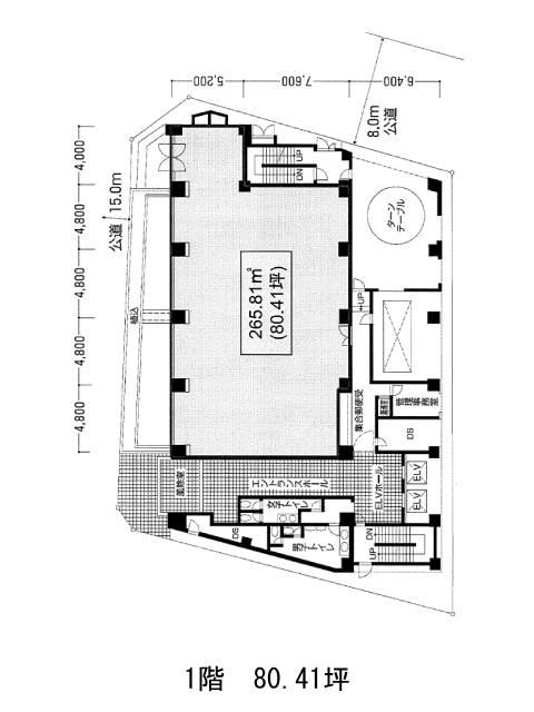
大河内ビル 1階

前の写真 次の写真

物件概要

物件番号

802-00001-10

物件名

大河内ビル

所在地

面積

80.41坪

賃料(共益費含)


入居日

募集終了

保証金

礼金

更新料

償却費

竣工

1991年6月

構造

SRC

規模

地上9階/地下2階

トイレ

男女別

空調

セントラル

エレベーター

セキュリティ

駐車場

耐震

新耐震基準

基準階天井高

2500mm

空室延床面積

240.70坪

最寄駅

情報更新日

2026/04/21

大河内ビルのテナント募集中区画

階数 面積 賃料(共益費含む) 保証金 入居可能日 検討リスト 詳細
2 138.70坪 応相談(応相談) 応相談
6 102.00坪 応相談(応相談) 応相談
…新着物件

大河内ビルのアクセス

大河内ビルの物件情報

大河内ビル(豊島区池袋)は池袋駅(C6番出口)から徒歩6分の賃貸オフィスです。
地上9階地下2階建SRC造、1991年竣工のビルです。新耐震基準を満たしています。ベージュの外壁に、大きなガラス窓がならび堅牢な印象の外観をしています。貸室は出入口が複数あり、来客用と動線を分ける事ができます。EV2基・給湯室・貸室外の男女別トイレ・非常階段2箇所・駐車場・機械警備・OAフロア・セントラル空調といった充実した設備仕様をしています。劇場通り沿いに建ち、周辺は中層階のオフィスビルやホテル等が建ち並ぶエリアです。
大河内ビルは池袋駅(C6番出口)の他に要町駅(5番出口)徒歩14分で利用も可能です。

近隣のエリア・駅から探す