6階 601は現在募集がありません
1フロア募集区画あり

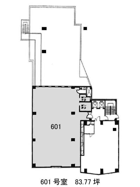
サンポウ池袋ビル 6階 601

前の写真 次の写真

物件概要

物件番号

802-00065-110

物件名

サンポウ池袋ビル

所在地

面積

83.77坪

賃料(共益費含)


入居日

募集終了

保証金

礼金

更新料

償却費

竣工

1988年3月

構造

RC

規模

地上7階

トイレ

男女別

空調

個別空調

エレベーター

セキュリティ

駐車場

耐震

新耐震基準

基準階天井高

2590mm

空室延床面積

41.87坪

最寄駅

情報更新日

2026/01/20

サンポウ池袋ビルのテナント募集中区画

階数 面積 賃料(共益費含む) 保証金 入居可能日 検討リスト 詳細
1 41.87坪 690,855円/月(16,500円/坪) 435万円
…新着物件

アクセス

サンポウ池袋ビルの物件情報

サンポウ池袋ビル(豊島区池袋)は池袋駅(C5番出口)から徒歩12分の賃貸オフィスです。
1988年竣工の鉄筋コンクリート造、外観はベージュのタイル張りで落ち着いた雰囲気のビルです。貸室内はほぼ整形オフィス、柱が壁側にあるため比較的自由にレイアウトを組むことが可能です。エレベーター2基設置、トイレは男女別、個別空調、敷地内に駐車場もあるため社用車を利用される場合は便利な環境でしょう。耐震性は、新耐震基準を満たしており、管理人が日中常駐しているため、セキュリティ面も安心です。
サンポウ池袋ビルは池袋駅(C5番出口)の他に北池袋駅(出口)徒歩13分、下板橋駅(南口)徒歩14分で利用も可能です。

近隣のエリア・駅から探す