Hareza池袋 Hareza Tower(ハレザタワー) 25階 25-1新着
物件概要
物件番号
805-00386-36物件名
Hareza池袋 Hareza Tower(ハレザタワー)所在地
- 東京都豊島区東池袋1-18-1
- アクセスマップ
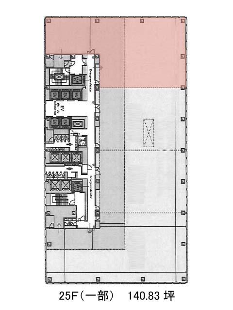
面積
140.83坪賃料(共益費含)
:応相談応相談
入居日
2027年2月上旬保証金
応相談礼金
なし更新料
なし償却費
なし竣工
2020年5月構造
SRC規模
地上33階/地下2階トイレ
男女別空調
個別空調エレベーター
有セキュリティ
駐車場
有耐震
新耐震基準基準階天井高
2900mm空室延床面積
344.43坪情報更新日
2026/03/02Hareza池袋 Hareza Tower(ハレザタワー)のテナント募集中区画
| 階数 | 面積 | 賃料(共益費含む) | 保証金 | 入居可能日 | 検討リスト | 詳細 |
|---|---|---|---|---|---|---|
| 17 | 203.60坪 | 応相談(応相談) | 応相談 | 2026年10月上旬 | ||
| 25 | 140.83坪 | 応相談(応相談) | 応相談 | 2027年2月上旬 |
…新着物件
Hareza池袋 Hareza Tower(ハレザタワー)のアクセス
Hareza池袋 Hareza Tower(ハレザタワー)の物件情報
Hareza池袋 Hareza Tower(ハレザタワー)(豊島区東池袋)は池袋駅(29番出口)から徒歩4分の賃貸オフィスです。2020年竣工、地上33階地下2階建てSRC造の築浅ビルです。基壇部は縦にのびるような外壁デザインで、大規模な建物でありながらスリムな印象をしています。貸室は90坪台や400坪台等、バリエーション豊かにそろいます。設備仕様として、EV・駐車場・個別空調・OAフロア・貸室外の男女別トイレがあります。貸室は無柱空間で、レイアウトがしやすいでしょう。天井高2900㎜と高く、開放感のある室内になるでしょう。Hareza池袋 Hareza Tower(ハレザタワー)は池袋駅(29番出口)の他に東池袋駅(1番出口)徒歩11分、東池袋四丁目駅(停留所)徒歩14分で利用も可能です。

