東信東池袋ビルのテナント募集中区画
| 階数 | 面積 | 賃料(共益費含む) | 保証金 | 入居可能日 | 検討リスト | 詳細 |
|---|---|---|---|---|---|---|
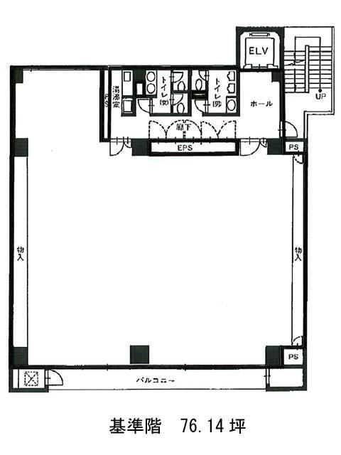
| 5 | 76.14坪 | 1,256,310円/月(16,500円/坪) | 1,096万円 | 2026年3月上旬 |
…新着物件
アクセス
東信東池袋ビルの物件情報
東信東池袋ビル(豊島区東池袋)は向原駅(停留所)から徒歩3分の賃貸オフィスです。東信東池袋ビルは向原駅(停留所)の他に新大塚駅(1番出口)徒歩5分、大塚駅(南口)徒歩7分で利用も可能です。

