6階は現在募集がありません
1フロア募集区画あり

東信東池袋ビル 6階

前の写真 次の写真

物件概要

物件番号

805-00006-50

物件名

東信東池袋ビル

所在地

面積

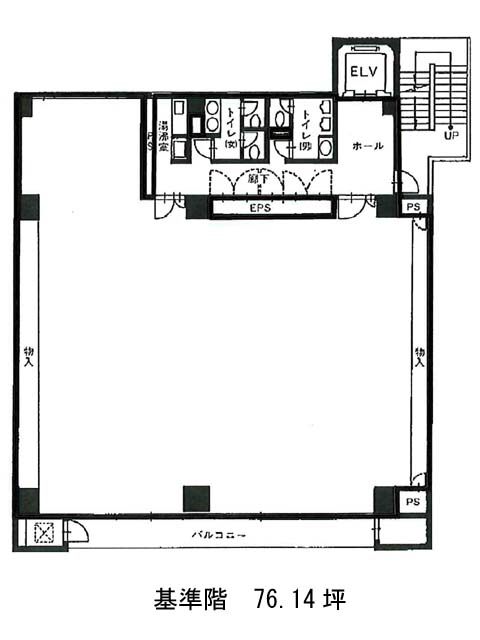
76.14坪

賃料(共益費含)


入居日

募集終了

保証金

礼金

更新料

償却費

竣工

1989年11月

構造

SRC

規模

地上7階/地下1階

トイレ

男女別

空調

個別空調

エレベーター

セキュリティ

駐車場

耐震

新耐震基準

基準階天井高

2500mm

空室延床面積

76.14坪

最寄駅

情報更新日

2026/03/03

東信東池袋ビルのテナント募集中区画

階数 面積 賃料(共益費含む) 保証金 入居可能日 検討リスト 詳細
5 76.14坪 1,256,310円/月(16,500円/坪) 1,096万円 2026年3月上旬
…新着物件

東信東池袋ビルのアクセス

東信東池袋ビルの物件情報

東信東池袋ビル(豊島区東池袋)は向原駅(停留所)から徒歩3分の賃貸オフィスです。
東信東池袋ビルは向原駅(停留所)の他に新大塚駅(1番出口)徒歩5分、大塚駅(南口)徒歩7分で利用も可能です。

近隣のエリア・駅から探す