VORT大塚FTのテナント募集中区画
| 階数 | 面積 | 賃料(共益費含む) | 保証金 | 入居可能日 | 検討リスト | 詳細 |
|---|---|---|---|---|---|---|
| 2 | 110.81坪 | 応相談(応相談) | 応相談 | 即 |
…新着物件
アクセス
VORT大塚FTの物件情報
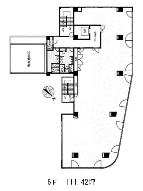
VORT大塚FT(豊島区南大塚)は向原駅(停留所)から徒歩3分の賃貸オフィスです。1992年竣工、地上7階地下1階建のビルです。都電荒川線向原駅、JR大塚駅からも徒歩圏内の立地です。丸みを帯びた外観が特徴的で、視認性が高いでしょう。貸室は100坪超えで、大規模な事務所をお探しの方によいでしょう。EV・駐車場・機械警備・個別空調・貸室外の男女別トイレといった設備仕様をしています。共用部は白い石貼りで明るく高級感があり、気持ちよく来客をお迎えできるでしょう。1階にスーパーマーケットがありご案内時の目印となります。VORT大塚FTは向原駅(停留所)の他に大塚駅(南口)徒歩4分、大塚駅前駅(停留所)徒歩5分で利用も可能です。

