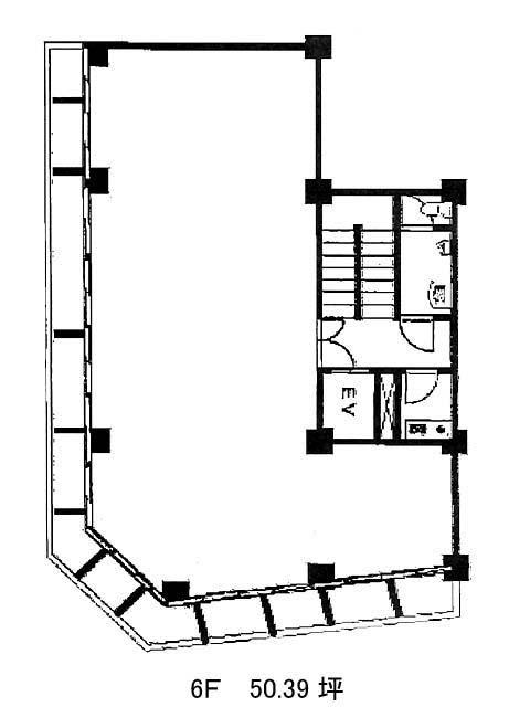
6階は現在募集がありません
フサカビル 6階
物件概要
フサカビルのテナント募集中区画
現在、空室がございません。
アクセス
フサカビルの物件情報
フサカビル(豊島区南大塚)は大塚駅前駅(停留所)から徒歩3分の賃貸オフィスです。フサカビルは大塚駅前駅(停留所)の他に大塚駅(南口)徒歩3分、新大塚駅(1番出口)徒歩6分で利用も可能です。

