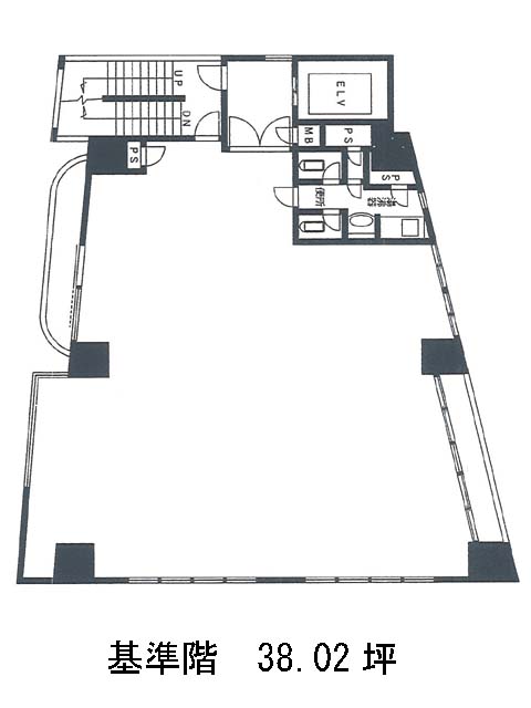
富士建LKビルのテナント募集中区画
| 階数 | 面積 | 賃料(共益費含む) | 保証金 | 入居可能日 | 検討リスト | 詳細 |
|---|---|---|---|---|---|---|
| 6 | 38.02坪 | 669,152円/月(17,600円/坪) | 275万円 | 相談 |
…新着物件
アクセス
富士建LKビルの物件情報
富士建LKビル(豊島区北大塚)は大塚駅前駅(停留所)から徒歩3分の賃貸オフィスです。富士建LKビルは大塚駅前駅(停留所)の他に大塚駅(北口)徒歩3分、巣鴨新田駅(停留所)徒歩6分で利用も可能です。

