16階は現在募集がありません
10フロア募集区画あり

リバーサイド隅田セントラルタワー 16階

前の写真 次の写真

物件概要

物件番号

856-00002-170

物件名

リバーサイド隅田セントラルタワー

所在地

面積

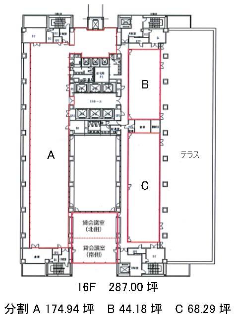
287.00坪

賃料(共益費含)


入居日

募集終了

保証金

礼金

更新料

償却費

竣工

1994年7月

構造

SRC

規模

地上33階/地下2階

トイレ

男女別

空調

セントラル

エレベーター

セキュリティ

駐車場

耐震

耐震補強済み

基準階天井高

2670mm

空室延床面積

2611.52坪

最寄駅

情報更新日

2025/12/12

リバーサイド隅田セントラルタワーのテナント募集中区画

階数 面積 賃料(共益費含む) 保証金 入居可能日 検討リスト 詳細
1 29.84坪 応相談(応相談) 応相談 相談
2 24.14坪 応相談(応相談) 応相談
4 196.56坪 応相談(応相談) 応相談
4 421.06坪 応相談(応相談) 応相談 2025年12月中旬
5 29.86坪 応相談(応相談) 応相談 2026年4月上旬
6 392.96坪 応相談(応相談) 応相談
9 89.04坪 応相談(応相談) 応相談 2026年4月上旬
10 243.76坪 応相談(応相談) 応相談
11 591.90坪 応相談(応相談) 応相談 2025年12月中旬
12 592.40坪 応相談(応相談) 応相談
…新着物件

アクセス

リバーサイド隅田セントラルタワーの物件情報

リバーサイド隅田セントラルタワー(墨田区堤通)は東向島駅(出口1)から徒歩12分の賃貸オフィスです。
1994年竣工、地上33階建ての超高層オフィスビルで、墨田区のランドマーク的存在です。1~16階がオフィス、それより上はマンション区画となっています。2015年と2021年に共用部や外装のリニューアル工事を実施済みです。エントランスやエレベーターはゆったりとしたスペースが設けられた開放的なつくりです。室内はやや特徴的な形の無柱空間で、時期によっては分割区画にも対応可能。主な設備としてエレベーター6基、OAフロア、男女別トイレ、貸会議室、喫煙スペースを備え、地下駐車場には550台が収容可能です。敷地内にコンビニと複数の飲食店があるため、食事には困らないでしょう。また、目の前を流れる隅田川に癒やされながらお仕事ができる環境にあります。

近隣のエリア・駅から探す