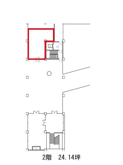
リバーサイド隅田セントラルタワー 2階 ウエストコート
物件概要
リバーサイド隅田セントラルタワーのテナント募集中区画
…新着物件
リバーサイド隅田セントラルタワーのアクセス
リバーサイド隅田セントラルタワーの物件情報
リバーサイド隅田セントラルタワー(墨田区堤通)は東向島駅(出口1)から徒歩12分の賃貸オフィスです。1994年竣工、地上33階建ての超高層オフィスビルで、墨田区のランドマーク的存在です。1~16階がオフィス、それより上はマンション区画となっています。2015年と2021年に共用部や外装のリニューアル工事を実施済みです。エントランスやエレベーターはゆったりとしたスペースが設けられた開放的なつくりです。室内はやや特徴的な形の無柱空間で、時期によっては分割区画にも対応可能。主な設備としてエレベーター6基、OAフロア、男女別トイレ、貸会議室、喫煙スペースを備え、地下駐車場には550台が収容可能です。敷地内にコンビニと複数の飲食店があるため、食事には困らないでしょう。また、目の前を流れる隅田川に癒やされながらお仕事ができる環境にあります。

