7階 702は現在募集がありません
2フロア募集区画あり
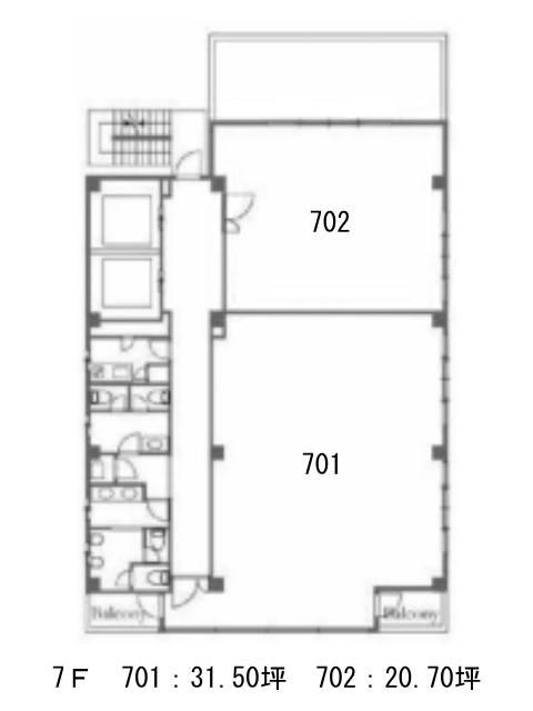
本所吾妻橋DJビル 7階 702
物件概要
物件番号
863-00003-68物件名
本所吾妻橋DJビル所在地
- 東京都墨田区本所4-19-3
- アクセスマップ
面積
20.70坪賃料(共益費含)
−入居日
募集終了保証金
−礼金
−更新料
−償却費
−竣工
1991年7月構造
S造規模
地上8階トイレ
男女別空調
個別空調エレベーター
有セキュリティ
有駐車場
有耐震
新耐震基準基準階天井高
2550mm空室延床面積
61.80坪最寄駅
- 本所吾妻橋駅
- 徒歩6分
- とうきょうスカイツリー駅
- 徒歩14分
- 浅草駅
- 徒歩15分
- 押上駅
- 徒歩16分
情報更新日
2025/09/26本所吾妻橋DJビルのテナント募集中区画
| 階数 | 面積 | 賃料(共益費含む) | 保証金 | 入居可能日 | 検討リスト | 詳細 |
|---|---|---|---|---|---|---|
| 2 | 30.30坪 | 433,290円/月(14,300円/坪) | 315万円 | 相談 | ||
| 7 | 31.50坪 | 応相談(応相談) | 398万円 | 相談 |
…新着物件
アクセス
本所吾妻橋DJビルの物件情報
本所吾妻橋DJビル(墨田区本所)は本所吾妻橋駅(A0番出口)から徒歩6分の賃貸オフィスです。
本所吾妻橋DJビルは本所吾妻橋駅(A0番出口)の他にとうきょうスカイツリー駅(東口)徒歩14分、浅草駅(A2-a)徒歩15分で利用も可能です。


