(仮称)SELAS中目黒 6階新着
物件概要
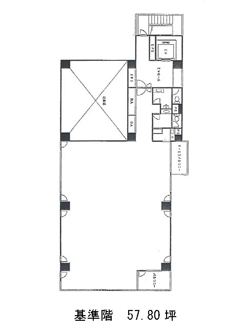
(仮称)SELAS中目黒のテナント募集中区画
| 階数 | 面積 | 賃料(共益費含む) | 保証金 | 入居可能日 | 検討リスト | 詳細 |
|---|---|---|---|---|---|---|
| 4 | 57.76坪 | 2,223,760円/月(38,500円/坪) | 応相談 | 2026年5月 | ||
| 6 | 57.76坪 | 2,350,832円/月(40,700円/坪) | 応相談 | 2026年5月 |
…新着物件
(仮称)SELAS中目黒のアクセス
(仮称)SELAS中目黒の物件情報
(仮称)SELAS中目黒(目黒区上目黒)は中目黒駅(出口)から徒歩3分の賃貸オフィスです。(仮称)SELAS中目黒は中目黒駅(出口)の他に代官山駅(正面口)徒歩12分、祐天寺駅(西口1)徒歩12分で利用も可能です。

