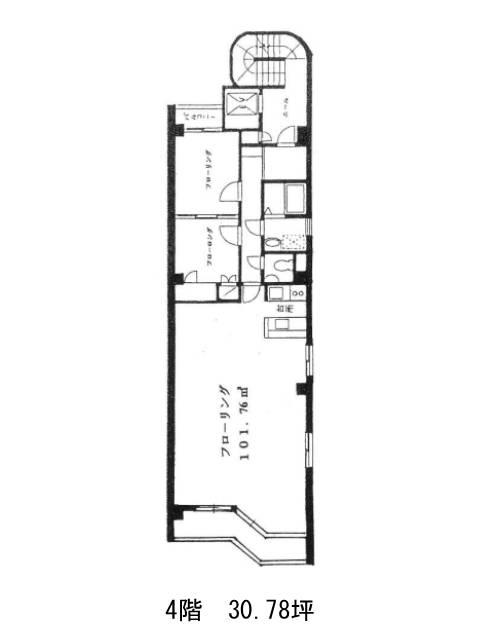
川鍋ビル 4階新着
物件概要
川鍋ビルのテナント募集中区画
| 階数 | 面積 | 賃料(共益費含む) | 保証金 | 入居可能日 | 検討リスト | 詳細 |
|---|---|---|---|---|---|---|
| 2 | 30.86坪 | 462,000円/月(14,972円/坪) | 132万円 | 即 | ||
| 4 | 30.78坪 | 440,000円/月(14,295円/坪) | 125万円 | 即 |
…新着物件
川鍋ビルのアクセス
川鍋ビルの物件情報
川鍋ビル(目黒区上目黒)は中目黒駅(出口)から徒歩4分の賃貸オフィスです。川鍋ビルは中目黒駅(出口)の他に祐天寺駅(西口1)徒歩12分、代官山駅(正面口)徒歩12分で利用も可能です。

