2階は現在募集がありません
1フロア募集区画あり

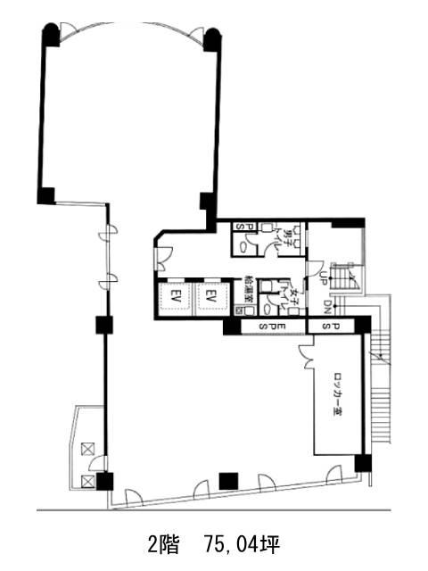
フロンティア中目黒 2階

前の写真 次の写真

物件概要

物件番号

884-00016-30

物件名

フロンティア中目黒

所在地

面積

75.04坪

賃料(共益費含)


入居日

募集終了

保証金

礼金

更新料

償却費

竣工

1992年10月

構造

SRC

規模

地上8階

トイレ

男女別

空調

個別空調

エレベーター

セキュリティ

駐車場

耐震

新耐震基準

基準階天井高

3100mm

空室延床面積

75.33坪

最寄駅

情報更新日

2026/04/20

フロンティア中目黒のテナント募集中区画

階数 面積 賃料(共益費含む) 保証金 入居可能日 検討リスト 詳細
3 75.33坪 応相談(応相談) 応相談 2026年8月上旬
…新着物件

フロンティア中目黒のアクセス

フロンティア中目黒の物件情報

フロンティア中目黒(目黒区中目黒)は中目黒駅(出口)から徒歩8分の賃貸オフィスです。
1992年竣工、地上8階建てSRC造のビルです。丸みを帯びた特徴的な外観で、遠くからでも視認性が高いでしょう。新耐震基準に適合しています。貸室は支柱の出っ張りが無く、使い勝手がよいでしょう。設備仕様として、EV2基・駐車場・機械警備・個別空調・非常階段1箇所・OAフロア・光ケーブルがそろいます。2019年に大規模リニューアルが実施され、清潔感が保たれています。天井高3,500㎜の室内は、開放感を感じられるでしょう。
フロンティア中目黒は中目黒駅(出口)の他に恵比寿駅(5番出口)徒歩12分、代官山駅(正面口)徒歩13分で利用も可能です。

近隣のエリア・駅から探す