フロンティア中目黒のテナント募集中区画
| 階数 | 面積 | 賃料(共益費含む) | 保証金 | 入居可能日 | 検討リスト | 詳細 |
|---|---|---|---|---|---|---|
| 3 | 75.33坪 | 応相談(応相談) | 応相談 | 2026年8月上旬 |
…新着物件
フロンティア中目黒のアクセス
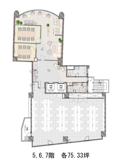
フロンティア中目黒の物件情報
フロンティア中目黒(目黒区中目黒)は中目黒駅(出口)から徒歩8分の賃貸オフィスです。1992年竣工、地上8階建てSRC造のビルです。丸みを帯びた特徴的な外観で、遠くからでも視認性が高いでしょう。新耐震基準に適合しています。貸室は支柱の出っ張りが無く、使い勝手がよいでしょう。設備仕様として、EV2基・駐車場・機械警備・個別空調・非常階段1箇所・OAフロア・光ケーブルがそろいます。2019年に大規模リニューアルが実施され、清潔感が保たれています。天井高3,500㎜の室内は、開放感を感じられるでしょう。フロンティア中目黒は中目黒駅(出口)の他に恵比寿駅(5番出口)徒歩12分、代官山駅(正面口)徒歩13分で利用も可能です。

