8階は現在募集がありません
TPR中目黒 8階
物件概要
TPR中目黒のテナント募集中区画
現在、空室がございません。
アクセス
TPR中目黒の物件情報
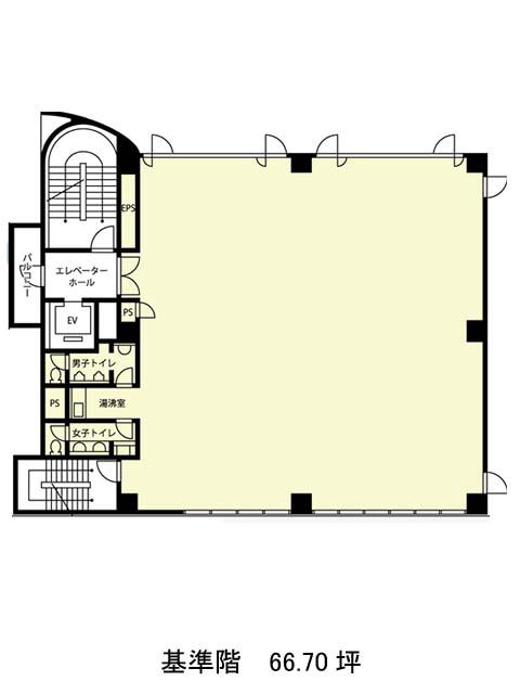
TPR中目黒(目黒区東山)は中目黒駅(出口)から徒歩5分の賃貸オフィスです。1988年竣工、地上9階地下1階建てSRC造のビルです。上階に流線形のモチーフがあり、目印なるでしょう。基準階面積は66.70坪。支柱の無いすっきりとした空間はレイアウトがしやすいでしょう。設備仕様としては、EV1基・駐車場・機械警備・個別空調・OAフロア・非常階段2箇所・貸室内の男女別トイレが整っています。オフィスは24時間使用可能です。ビル1階にすし屋が入り、来客へのご案内時にわかりやすいでしょう。TPR中目黒は中目黒駅(出口)の他に代官山駅(正面口)徒歩12分で利用も可能です。

