5階は現在募集がありません

TPR中目黒 5階

前の写真 次の写真

物件概要

物件番号

886-00022-80

物件名

TPR中目黒

所在地

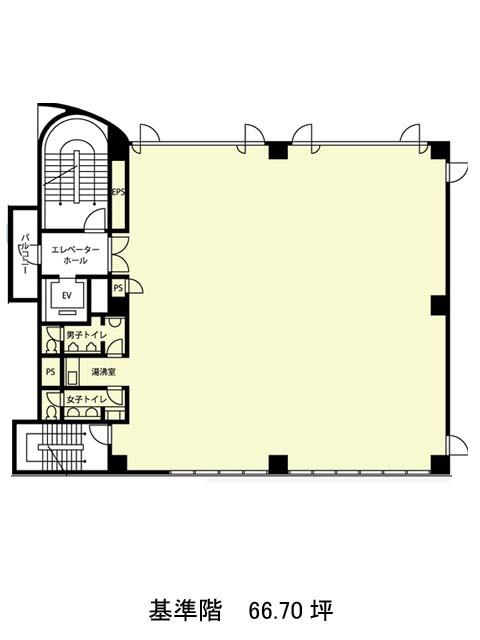
面積

66.70坪

賃料(共益費含)


入居日

募集終了

保証金

礼金

更新料

償却費

竣工

1988年3月

構造

SRC

規模

地上9階/地下1階

トイレ

男女別

空調

個別空調

エレベーター

セキュリティ

駐車場

耐震

新耐震基準

基準階天井高

空室延床面積

最寄駅

情報更新日

2024/11/13

TPR中目黒のテナント募集中区画

現在、空室がございません。

アクセス

TPR中目黒の物件情報

TPR中目黒(目黒区東山)は中目黒駅(出口)から徒歩5分の賃貸オフィスです。
1988年竣工、地上9階地下1階建てSRC造のビルです。上階に流線形のモチーフがあり、目印なるでしょう。基準階面積は66.70坪。支柱の無いすっきりとした空間はレイアウトがしやすいでしょう。設備仕様としては、EV1基・駐車場・機械警備・個別空調・OAフロア・非常階段2箇所・貸室内の男女別トイレが整っています。オフィスは24時間使用可能です。ビル1階にすし屋が入り、来客へのご案内時にわかりやすいでしょう。
TPR中目黒は中目黒駅(出口)の他に代官山駅(正面口)徒歩12分で利用も可能です。

近隣のエリア・駅から探す