6階は現在募集がありません
1フロア募集区画あり

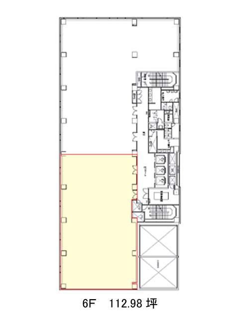
目黒東山ビル 6階

前の写真 次の写真

物件概要

物件番号

886-00031-60

物件名

目黒東山ビル

所在地

面積

112.98坪

賃料(共益費含)


入居日

募集終了

保証金

礼金

更新料

償却費

竣工

1995年3月

構造

規模

地上8階

トイレ

男女別

空調

個別空調

エレベーター

セキュリティ

駐車場

耐震

新耐震基準

基準階天井高

2550mm

空室延床面積

51.86坪

最寄駅

情報更新日

2026/05/22

目黒東山ビルのテナント募集中区画

階数 面積 賃料(共益費含む) 保証金 入居可能日 検討リスト 詳細
7 51.86坪 応相談(応相談) 応相談 2026年10月上旬
…新着物件

目黒東山ビルのアクセス

目黒東山ビルの物件情報

目黒東山ビル(目黒区東山)は中目黒駅(出口)から徒歩7分の賃貸オフィスです。
1995年竣工、地上8階建て、山手通りの角地に立地しています。外観は二色の石張りに横長の窓が建物を囲むデザインで、重厚な存在感を感じます。基準階面積は約251坪のゆったりした規模感で、エレベーター3基が並ぶエントランスも広々としています。室内は日当たりが良く、柱も少ないため自由なレイアウトが可能です。館内に個別空調、OAフロア、男女別トイレ、併設駐車場などを備える快適な設備環境もポイントです。周辺にはコンビニ、薬局、飲食点が充実していますので、お買い物やランチ選びにも不自由しません。
目黒東山ビルは中目黒駅(出口)の他に代官山駅(正面口)徒歩13分で利用も可能です。

近隣のエリア・駅から探す