6階は現在募集がありません
目黒東山ビル 6階
物件概要
目黒東山ビルのテナント募集中区画
現在、空室がございません。
アクセス
目黒東山ビルの物件情報
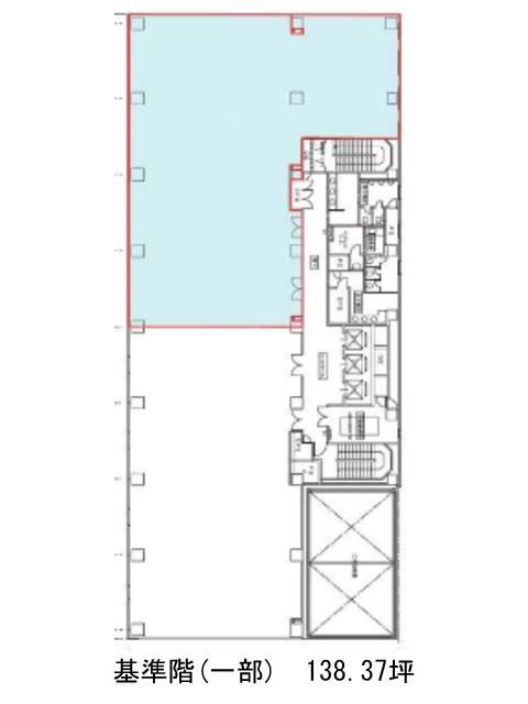
目黒東山ビル(目黒区東山)は中目黒駅(出口)から徒歩7分の賃貸オフィスです。1995年竣工、地上8階建て、山手通りの角地に立地しています。外観は二色の石張りに横長の窓が建物を囲むデザインで、重厚な存在感を感じます。基準階面積は約251坪のゆったりした規模感で、エレベーター3基が並ぶエントランスも広々としています。室内は日当たりが良く、柱も少ないため自由なレイアウトが可能です。館内に個別空調、OAフロア、男女別トイレ、併設駐車場などを備える快適な設備環境もポイントです。周辺にはコンビニ、薬局、飲食点が充実していますので、お買い物やランチ選びにも不自由しません。目黒東山ビルは中目黒駅(出口)の他に代官山駅(正面口)徒歩13分で利用も可能です。

