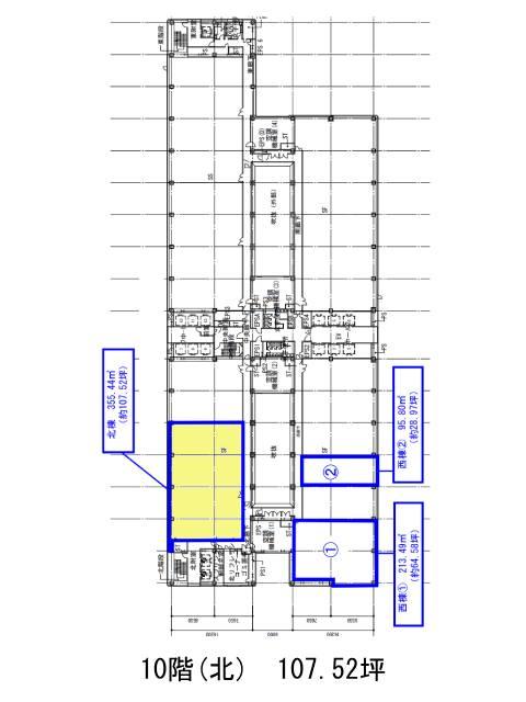
タイム24ビル 10階 北棟
物件概要
物件番号
94-00004-430物件名
タイム24ビル所在地
- 東京都江東区青海2-4-32
- アクセスマップ
面積
107.53坪賃料(共益費含)
:応相談応相談
入居日
即保証金
応相談礼金
なし更新料
なし償却費
なし竣工
1996年1月構造
S造規模
地上19階/地下1階トイレ
男女別空調
セントラルエレベーター
有セキュリティ
駐車場
有耐震
新耐震基準基準階天井高
2600mm空室延床面積
1302.28坪最寄駅
- テレコムセンター駅
- 徒歩3分
- 東京国際クルーズターミナル駅
- 徒歩10分
- 青海駅
- 徒歩15分
情報更新日
2026/03/03タイム24ビルのテナント募集中区画
…新着物件
タイム24ビルのアクセス
タイム24ビルの物件情報
タイム24ビル(江東区青海)はテレコムセンター駅(北口)から徒歩3分の賃貸オフィスです。基準階が約895坪の大型貸しオフィスになります。東西南北の棟に分かれており、貸室内は長方形の無柱空間でレイアウトの自由度は高いです。また吹き抜け構造を採用しており全フロアで両面から採光可能で貸室内が明るいのも魅力的な点です。1996年竣工、地上19階・地下1階の鉄骨鉄筋コンクリート造で、新耐震基準を満たしています。ビル内にコンビニ、レストランがあり、近隣ビルに郵便局があるため周辺環境は充実しています。OAフロア、セントラル空調、男女別トイレ、エレベーターは12基設置され、有人・機械警備併用でセキュリティは万全です。タイム24ビルはテレコムセンター駅(北口)の他に東京国際クルーズターミナル駅(東口)徒歩10分、青海駅(南口)徒歩15分で利用も可能です。

