6階は現在募集がありません
8フロア募集区画あり

日本ヒューレット・パッカード本社ビル 6階

前の写真 次の写真

物件概要

物件番号

99-00116-3

物件名

日本ヒューレット・パッカード本社ビル

所在地

面積

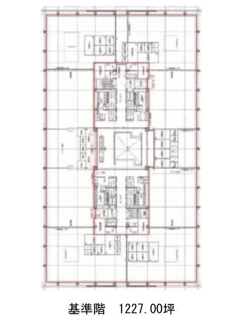
1227.00坪

賃料(共益費含)


入居日

募集終了

保証金

礼金

更新料

償却費

竣工

2011年1月

構造

S造

規模

地上9階

トイレ

男女別

空調

セントラル

エレベーター

セキュリティ

駐車場

耐震

新耐震基準

基準階天井高

2900mm

空室延床面積

3596.36坪

最寄駅

情報更新日

2026/05/08

日本ヒューレット・パッカード本社ビルのテナント募集中区画

階数 面積 賃料(共益費含む) 保証金 入居可能日 検討リスト 詳細
4 558.83坪 応相談(応相談) 応相談 相談
4 284.23坪 応相談(応相談) 応相談 相談
4 274.58坪 応相談(応相談) 応相談 相談
6 1267.27坪 応相談(応相談) 応相談 相談
6 277.24坪 応相談(応相談) 応相談 相談
6 308.16坪 応相談(応相談) 応相談 相談
6 346.42坪 応相談(応相談) 応相談 相談
6 279.63坪 応相談(応相談) 応相談 相談
…新着物件

日本ヒューレット・パッカード本社ビルのアクセス

日本ヒューレット・パッカード本社ビルの物件情報

日本ヒューレット・パッカード本社ビル(江東区大島)は住吉駅(A3番出口)から徒歩9分の賃貸オフィスです。
都立猿江恩賜公園の東隣に位置し、ビルの横幅が広く、大きな窓が連なる外観は、見る者の目を引き視認性を大幅に高めています。貸室内の天井高が2900mmと高く、開放感があり、貸室内が明るいのが魅力的な点です。基準階は1267坪と大型の貸しオフィスで、共用部を中心にぐるりと一周回れる構造で、無柱空間のためレイアウトの自由度は非常に高いです。2011年竣工、地上9階建てで、近隣にはコンビニ、郵便局、飲食店が点在し、利便性の高いエリアです。OAフロア、個別空調、男女別トイレ、エレベーターは13基と充実の設備で、有人・機械警備併用でセキュリティは万全です。
日本ヒューレット・パッカード本社ビルは住吉駅(A3番出口)の他に西大島駅(A1番出口)徒歩10分、錦糸町駅(出口1)徒歩15分で利用も可能です。

近隣のエリア・駅から探す