虎ノ門40MTビル 9階
物件概要
物件番号
122-00013-350物件名
虎ノ門40MTビル所在地
- 東京都港区虎ノ門5-13-1
- アクセスマップ
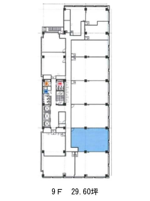
面積
29.60坪賃料(共益費含)
:応相談応相談
入居日
2026年7月保証金
応相談礼金
なし更新料
なし償却費
なし竣工
1982年12月構造
規模
地上9階/地下3階トイレ
男女別空調
エレベーター
有セキュリティ
駐車場
有耐震
新耐震基準基準階天井高
2450mm空室延床面積
193.48坪情報更新日
2026/03/03虎ノ門40MTビルのテナント募集中区画
| 階数 | 面積 | 賃料(共益費含む) | 保証金 | 入居可能日 | 検討リスト | 詳細 |
|---|---|---|---|---|---|---|
| 2 | 22.48坪 | 352,000円/月(15,658円/坪) | 250万円 | 即 | ||
| 5 | 110.80坪 | 応相談(応相談) | 応相談 | 即 | ||
| 9 | 30.60坪 | 応相談(応相談) | 応相談 | 2026年9月 | ||
| 9 | 29.60坪 | 応相談(応相談) | 応相談 | 2026年7月 |
…新着物件
虎ノ門40MTビルのアクセス
虎ノ門40MTビルの物件情報
虎ノ門40MTビル(港区虎ノ門)は神谷町駅(3番出口)から徒歩2分の賃貸オフィスです。神谷町駅直結の物件で雨の日でも濡れることなくアクセスが可能です。桜田通りに面し、接道面も大きく一際存在感があります。エントランス~エレベーターホールはブラウン調でまとめられており、堅実な印象を受けます。
地上9階建て、1フロアは最大300坪強の規模。フロアや募集の時期によって分割区画がございます。主な設備は個別空調、フリーアクセスフロア、男女別トイレ、エレベーター3基、駐車場です。共有部分はリニューアル済み。
ビル1階にコンビニがある他、周辺には飲食店が点在しています。虎ノ門40MTビルは神谷町駅(3番出口)の他に虎ノ門ヒルズ駅(A1番出口)徒歩6分、御成門駅(A5番出口)徒歩9分で利用も可能です。

