4階は現在募集がありません
2フロア募集区画あり

末広ビル 4階

前の写真 次の写真

物件概要

物件番号

122-00234-20

物件名

末広ビル

所在地

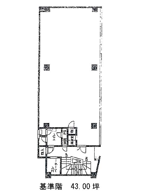
面積

43.00坪

賃料(共益費含)


入居日

募集終了

保証金

礼金

更新料

償却費

竣工

1971年1月

構造

SRC

規模

地上10階/地下1階

トイレ

男女別

空調

個別空調

エレベーター

セキュリティ

駐車場

耐震

耐震補強済み

基準階天井高

空室延床面積

86.00坪

最寄駅

情報更新日

2026/02/19

末広ビルのテナント募集中区画

階数 面積 賃料(共益費含む) 保証金 入居可能日 検討リスト 詳細
5 43.00坪 1,087,900円/月(25,300円/坪) 989万円 2026年4月上旬
6 43.00坪 1,087,900円/月(25,300円/坪) 989万円 2026年4月上旬
…新着物件

末広ビルのアクセス

末広ビルの物件情報

末広ビル(港区虎ノ門)は虎ノ門ヒルズ駅(B1番出口)から徒歩3分の賃貸オフィスです。
末広ビルは虎ノ門ヒルズ駅(B1番出口)の他に虎ノ門駅(2a番出口)徒歩3分、霞ケ関駅(A13番出口)徒歩7分で利用も可能です。

近隣のエリア・駅から探す