末広ビル 5階
物件概要
物件番号
122-00234-30物件名
末広ビル所在地
- 東京都港区虎ノ門2-5-4
- アクセスマップ
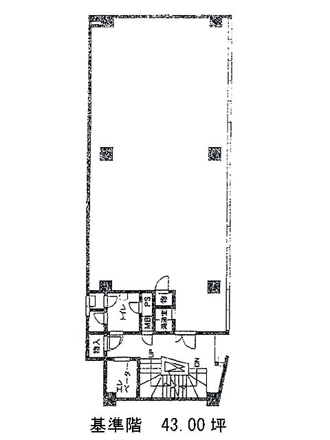
面積
43.00坪賃料(共益費含)
月額1,087,900円(25,300円/坪)
入居日
2026年4月上旬保証金
9,890,000円礼金
なし更新料
なし償却費
1ケ月竣工
1971年1月構造
SRC規模
地上10階/地下1階トイレ
男女別空調
個別空調エレベーター
有セキュリティ
有駐車場
無耐震
耐震補強済み基準階天井高
空室延床面積
86.00坪情報更新日
2026/02/19末広ビルのテナント募集中区画
| 階数 | 面積 | 賃料(共益費含む) | 保証金 | 入居可能日 | 検討リスト | 詳細 |
|---|---|---|---|---|---|---|
| 5 | 43.00坪 | 1,087,900円/月(25,300円/坪) | 989万円 | 2026年4月上旬 | ||
| 6 | 43.00坪 | 1,087,900円/月(25,300円/坪) | 989万円 | 2026年4月上旬 |
…新着物件
末広ビルのアクセス
末広ビルの物件情報
末広ビル(港区虎ノ門)は虎ノ門ヒルズ駅(B1番出口)から徒歩3分の賃貸オフィスです。末広ビルは虎ノ門ヒルズ駅(B1番出口)の他に虎ノ門駅(2a番出口)徒歩3分、霞ケ関駅(A13番出口)徒歩7分で利用も可能です。

