末広ビルのテナント募集中区画
| 階数 | 面積 | 賃料(共益費含む) | 保証金 | 入居可能日 | 検討リスト | 詳細 |
|---|---|---|---|---|---|---|
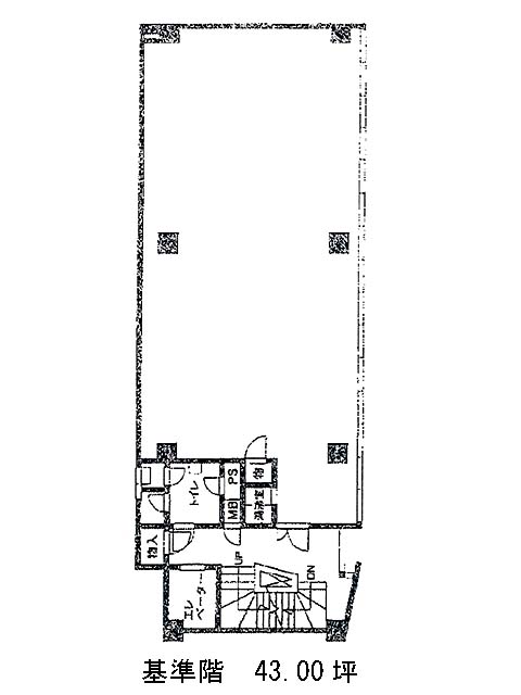
| 5 | 43.00坪 | 1,087,900円/月(25,300円/坪) | 989万円 | 2026年4月上旬 | ||
| 6 | 43.00坪 | 1,087,900円/月(25,300円/坪) | 989万円 | 2026年4月上旬 |
…新着物件
末広ビルのアクセス
末広ビルの物件情報
末広ビル(港区虎ノ門)は虎ノ門ヒルズ駅(B1番出口)から徒歩3分の賃貸オフィスです。末広ビルは虎ノ門ヒルズ駅(B1番出口)の他に虎ノ門駅(2a番出口)徒歩3分、霞ケ関駅(A13番出口)徒歩7分で利用も可能です。

