神谷町MTビル 16階
物件概要
物件番号
122-00036-400物件名
神谷町MTビル所在地
- 東京都港区虎ノ門4-3-20
- アクセスマップ
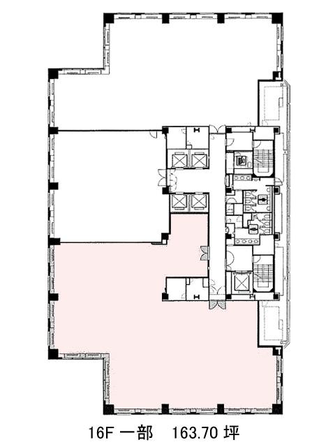
面積
163.70坪賃料(共益費含)
:応相談応相談
入居日
相談保証金
応相談礼金
なし更新料
なし償却費
なし竣工
1993年3月構造
規模
地上20階/地下4階トイレ
男女別空調
個別空調エレベーター
有セキュリティ
駐車場
有耐震
新耐震基準基準階天井高
2700mm空室延床面積
3862.90坪情報更新日
2025/12/10神谷町MTビルのテナント募集中区画
…新着物件
アクセス
神谷町MTビルの物件情報
神谷町MTビル(港区虎ノ門)は神谷町駅(4A番出口)から徒歩2分の賃貸オフィスです。都心の駅チカ物件でありながら、周辺を木々に囲まれた緑豊かな物件です。1階部分ではコンビニが営業中ですので何かと便利でしょう。また緑道に接続しており、心身のリフレッシュに適しています。
基準となるオフィスフロアは約350坪の規模。フロアや募集時期によって分割区画があり、コンパクトサイズの貸室が出る場合もありますので、様々なニーズに対応可能かと思います。男女別トイレと給湯室は全て室外に設置されています。共有部分と執務室の動線は複数確保されていますので、使い勝手が良いでしょう。神谷町MTビルは神谷町駅(4A番出口)の他に虎ノ門ヒルズ駅(A1番出口)徒歩7分、六本木一丁目駅(2番出口)徒歩10分で利用も可能です。

