赤坂日本ビルのテナント募集中区画
| 階数 | 面積 | 賃料(共益費含む) | 保証金 | 入居可能日 | 検討リスト | 詳細 |
|---|---|---|---|---|---|---|
| B1+5F | 92.86坪 | 2,247,212円/月(24,200円/坪) | 1,634万円 | 相談 | ||
| 5 | 78.64坪 | 1,730,080円/月(22,000円/坪) | 1,258万円 | 即 |
…新着物件
アクセス
赤坂日本ビルの物件情報
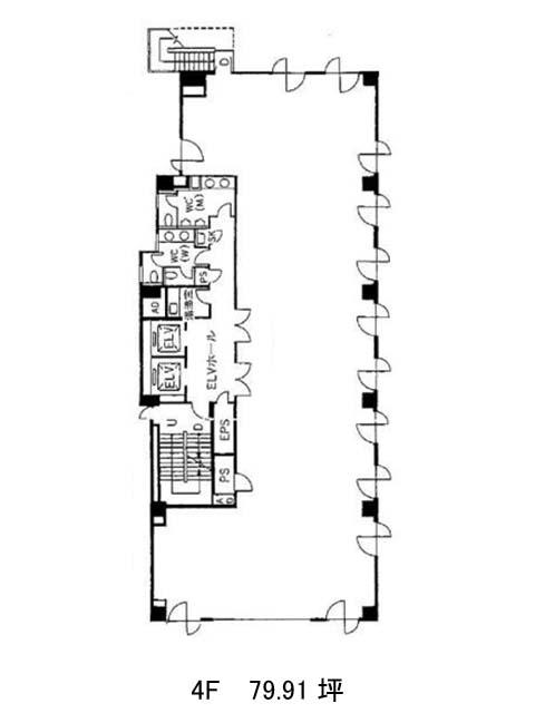
赤坂日本ビル(港区赤坂)は乃木坂駅(2番出口)から徒歩2分の賃貸オフィスです。1994年竣工、外観は全体的にグレーを基調とした色合いで、石造りになっているためとても重厚感のあるビルです。エントランスやエレベーターホールは清潔感があり、とても落ち着いた空間となっております。基準階は約79坪あり、室内は余計な柱が無いため、効率の良いレイアウトが組めそうです。貸室内にはOAフロアが備えられており、トイレは男女別となっております。また周辺にはコンビニや飲食店などがあるため、ランチも楽しめるでしょう。赤坂日本ビルは乃木坂駅(2番出口)の他に六本木駅(8番出口)徒歩7分、赤坂駅(7番出口)徒歩10分で利用も可能です。

